X
28/05/2020 Mr/Mme C de 4530 Vaux-Borset

Devis travaux concernant : Crépi

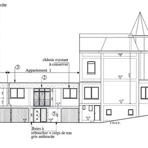
Bonjour, Je viens d'acheter un appartement situé Rue Burenville 107 (Liège). Je souhaiterais rénover la façade. L'idéal serait un crépis isolant sur la partie supérieure (1er étage) du bâtiment et éventuellement juste un crépis sur la partie inférieure (rez-de-chaussée), l'isolant n'étant pas nécessaire (garage et caves). Je ne sais pas si cela est raisonnable et réalisable. Je ne connais pas les différentes possibilités de finition mais je souhaiterais un bon compromis entre le prix et l'esthétique. La façade fait 10 m de long, le rez-de-chaussée possède une hauteur d'environ 2m10 et le 1er étage environ 2m50. Il y a 2 garages au rez-de-chaussée diminuant ainsi la surface à recouvrir. Toutes ces mesures sont présentes sur les plans et les photos mis à votre dispositions. La façade est relativement abimée. Prenez-vous en charge ce genre de travaux préalables au crépis ? Concernant les primes, je ne sais pas exactement ce qu'il en est pour la région de Liège, auriez-vous plus d'informations ? D'avance merci, Nicolas CLAES
go travaux
go travaux
go travaux

Vous aussi, faites appel à Go Travaux pour un devis en ligne

Derniers devis en ligne

Crépi - Demande de devis Neupre
Crépi - Demande de devis Arlon
Crépi - Demande de devis Lanzerath
Crépi - Demande de devis Bruxelles
Crépi - Demande de devis flémalle-grande
Crépi - Demande de devis Herstal
Crépi - Demande de devis Tervuren
Crépi - Demande de devis Herstal
Crépi - Demande de devis Andrimont
Crépi - Demande de devis beersel

© 2021 GoTravaux! -  Devis travaux - Flux Rss - Référenceurs - Rénovation & travaux - ConfidentialitéConditions d’utilisation -  Site web par Satrabel 

Edit consent